项目名称:张家界雾里观阵山民宿
项目类型:度假民宿
项目地址:湖南省张家界市武陵源区板栗山
项目面积:1600㎡
设计方:藤麦设计TranDadsionDesign
完工时间:2023年
设计类型:建筑设计、室内设计
主创设计师:藤麦
设计团队:藤麦,蒲海君,周建福,萨力
摄影师:冯开强
隐于武陵源深处:一座道家哲思与湘西吊脚楼共生的民宿设计实践
文 / 藤麦设计
在张家界武陵源区板栗山的幽谷之中,时间仿佛放缓了脚步。这里远离喧嚣,云雾缭绕,溪流潺潺,恰如陶渊明笔下“芳草鲜美,落英缤纷”的桃花源境。十余年前,一位来自福建、怀揣深厚乡土情怀的业主便在此驻足,被这片土地的灵性所打动。多年沉淀之后,他选择将这份情感托付于我们——以两座濒临废弃的老农舍为起点,共同开启一场关于“归隐”与“共生”的空间实验。
作为本次项目的设计方,我们深知,这不仅是一次建筑改造,更是一场对地域文化、自然肌理与东方哲学的深度回应。我们的目标很明确:让建筑成为人与自然对话的媒介,让空间承载道家“天人合一”的精神内核,并在当代语境中重新诠释湘西传统民居的生命力。


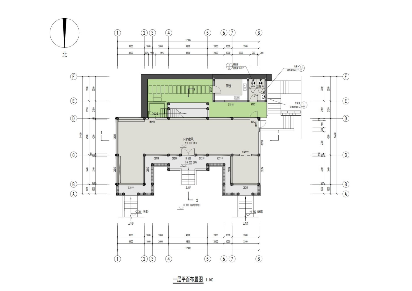
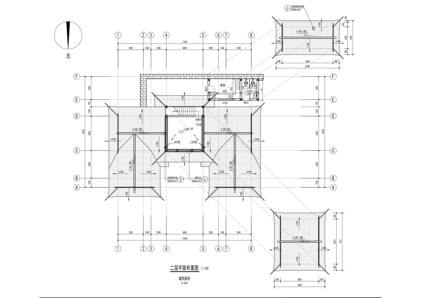
湘西吊脚楼,是山地人居智慧的结晶,亦是地域文化的视觉符号。面对原有农舍残损却骨架犹存的结构,我们没有选择推倒重来,而是以“修旧如旧、用新如故”的策略进行重构。接待大厅在保留原始木构体系的基础上进行加固与再生,使其成为连接过去与当下的精神锚点。屋面坡度、挑檐尺度、柱网排布均遵循传统营造逻辑,同时引入现代防水与保温技术,确保舒适性与耐久性并存。


项目地处武陵山脉腹地,石材、竹木资源丰富。我们大量采用当地毛石砌筑墙体,粗粝而温厚的质感不仅赋予建筑稳固的基底,更建立起与大地的视觉与精神联结。庭院铺装选用天然青石板,随地形起伏错落铺设,模拟山径的自然走向;竹林环绕客房周边,既形成私密屏障,又随风摇曳,为空间注入动态诗意。


道家强调“致虚极,守静笃”,这一理念贯穿于整个空间叙事之中。我们在庭院中心嵌入太极八卦图样,非为装饰,而是作为空间气韵的凝聚点,引导访客在行走坐卧间感知阴阳流转。观日出茶亭以流畅的中式飞檐勾勒天际线,晨光初现时,光影在屋面滑动,茶香与山岚交融,营造出“独与天地精神往来”的静谧时刻。
客房设计则强调“内观”与“外融”的平衡。大面积落地窗模糊室内外界限,山色四季尽收眼底;室内陈设摒弃繁复,以素麻、原木、陶器等天然材质构建质朴氛围,引导住客回归本真状态。


在景观处理上,我们奉行“少即是多”的原则。不设人工水景,不植异域花木,仅对原有植被进行梳理与补植,保留野趣。小径依山势蜿蜒,石阶随溪流转折,一切顺应自然肌理。夜幕降临时,暖黄灯光从吊脚楼缝隙中透出,如星火散落山谷,温柔而不侵扰。


















这座隐于板栗山中的民宿,是我们对“慢生活”与“精神返乡”的一次真诚回应。它不是炫技的舞台,也不是风格的堆砌,而是一个让人愿意停下脚步、深呼吸、与自己对话的场所。在这里,建筑谦逊地退后,自然与人文悄然上前——这正是我们始终相信的设计力量:不征服,只共生;不喧哗,自有声。
我们期待,每一位踏入此地的旅人,都能在这片山水之间,找到属于自己的“桃花源”。
项目名称:张家界雾里观阵山民宿
项目地点:湖南省张家界市武陵源区板栗山
设计单位:藤麦建筑设计事务所
业主单位:张家界武陵圆旅游开发有限公司
主创设计:藤麦
摄影:冯开强
竣工时间:2022年