首页Home
案例Works
资讯News
关于About
工作Jobs
联系Contact
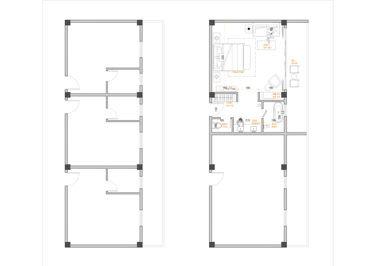
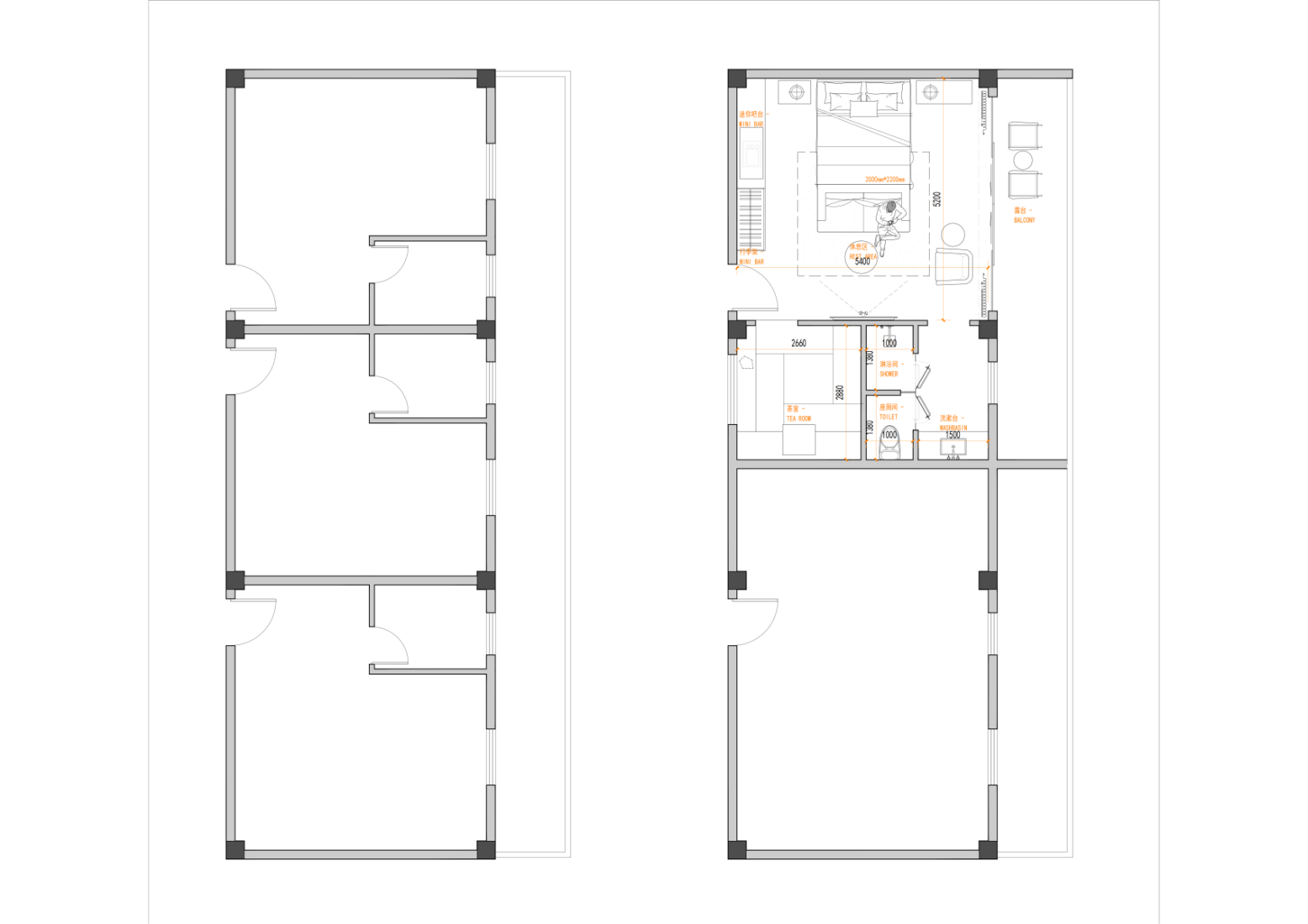
项目名称:眉山侯家大院民宿 项目类型:民宿 项目地址:四川省眉山市洪雅县 项目面积:1500㎡ 设计方:藤麦设计TranDadsionDesign 设计时间:2025年 设计类型:室内设计+软装设计 建设状况:施工中 主持设计师:藤麦 设计团队:藤麦,张亮
我们为您推荐的案例